:::

307型外觀透視圖

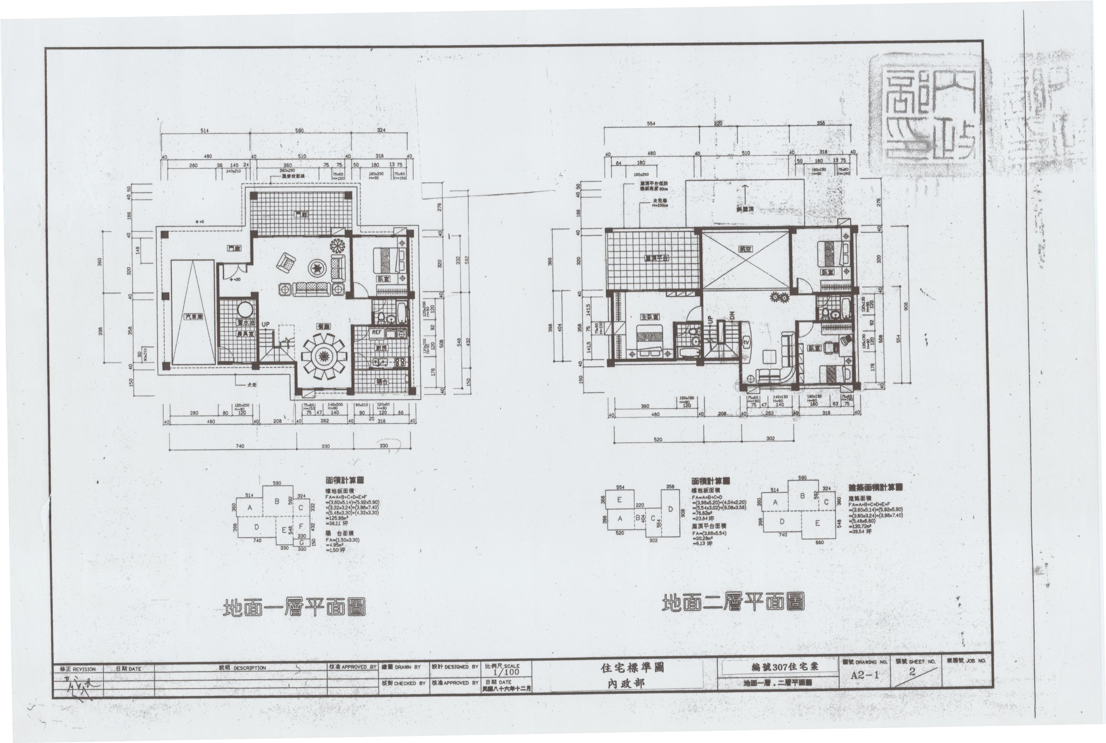
總樓地板面積:234.25m2(70.86坪)
壹樓:125.98m2(38.11坪)
貳樓: 78.82m2(23.84坪)
參樓: 29.45m2( 8.91坪)

相關圖說:

圖片檔案:307-A1-1307-A2-1307-A2-2307-A3-1307-A3-2307-A4-1307-A5-1307-A5-2307-A5-3
圖片檔案:307-A5-4307-A5-5307-A5-6307-A6-1307-A6-2307-A7-1307-A7-2307-A7-3307-A7-4
圖片檔案:307-E1307-E2307-E3307-P1307-P2307-P3307-S1-1307-S2-1307-S2-2307-S2-3
圖片檔案:307-S2-4307-S2-5307-T1307-T2

(建議列印尺寸A2以上字體較清楚)

壹樓平面圖
壹樓平面圖

室內:125.98m2(38.11坪)

陽台: 4.95m2( 1.50坪)

壹樓平面圖
  1. 門廊
  2. 客廳
  3. 餐廳
  4. 廚房
  5. 臥室
  6. 浴廁
  7. 農具室
  8. 汽車庫
  9. 陽台
貳樓平面圖
貳樓平面圖

室內:78.82m2(23.84坪)

屋頂平台:20.28m2( 6.14坪)

貳樓平面圖
  1. 起居室
  2. 主臥室
  3. 臥室
  4. 浴廁
  5. 屋頂平台
參樓平面圖
參樓平面圖

室內:29.45m2( 8.91坪)

屋頂平台:55.25m2(16.71坪)

參樓平面圖
  1. 起居室
  2. 儲藏室
  3. 屋頂平台