:::

202型外觀透視圖

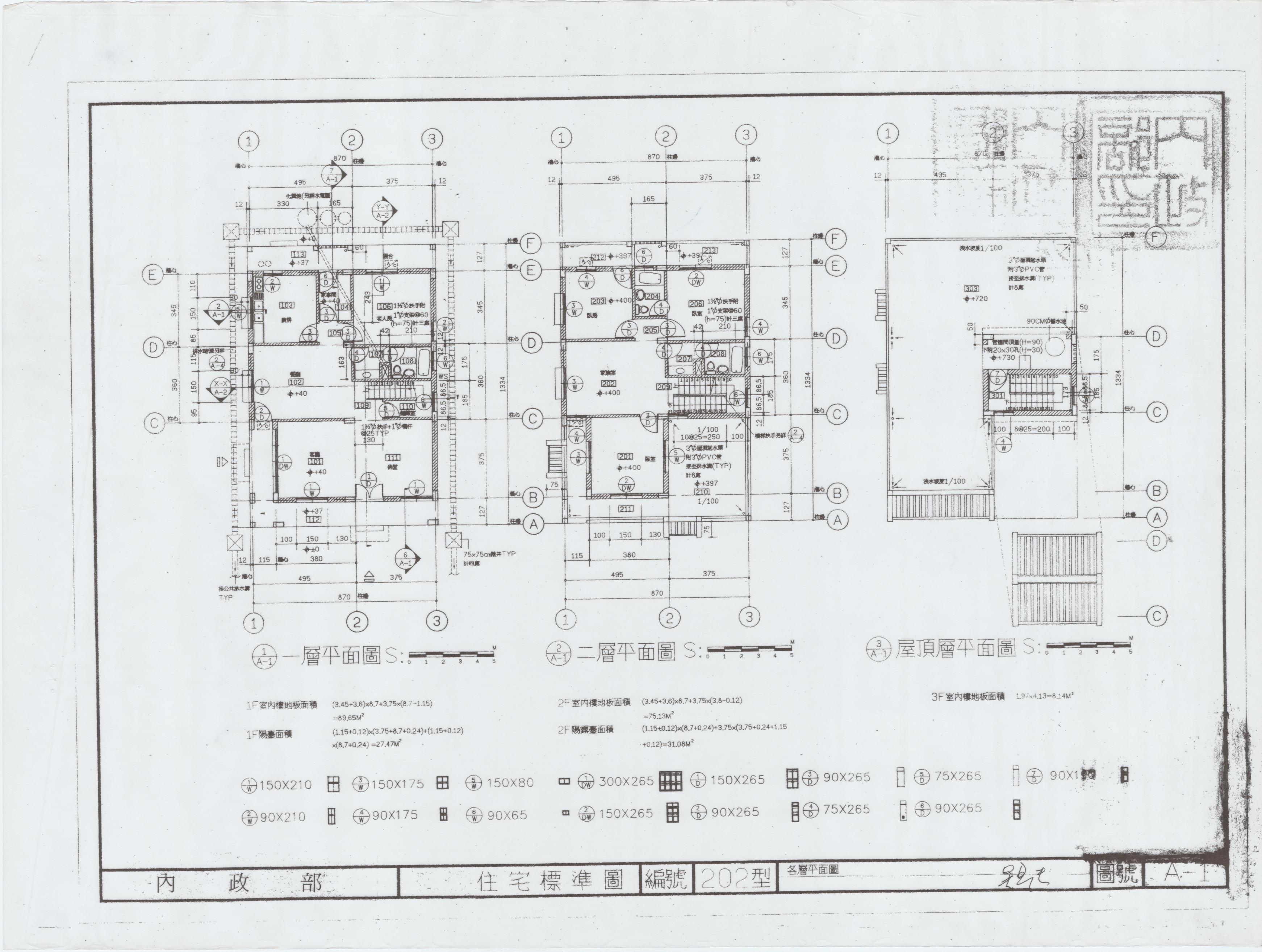
總樓地板面積:172.92m2(52.31坪)
壹樓:89.65m2(27.12坪)
貳樓:75.13m2(22.73坪)
屋頂:8.14m2( 2.46坪)

相關圖說:

圖片檔案: 202-A0202-A1202-A2202-A3202-A4202-E1202-E2202-E3
圖片檔案: 202-P1202-S1202-S2202-S3202-S4

(建議列印尺寸A2以上字體較清楚)

壹樓平面圖
壹樓平面圖

室內:89.65m2(27.12坪)

迥廊:27.47m2( 8.31坪)

壹樓平面圖
  1. 客廳
  2. 神明廳
  3. 廚房
  4. 餐廳
  5. 臥室
  6. 衛浴
  7. 儲藏室
  8. 陽台
貳樓平面圖
貳樓平面圖

室內:75.13m2(22.73坪)

陽露台:31.08m2( 9.4坪)

貳樓平面圖
  1. 露台
  2. 臥室
  3. 起居室
  4. 主臥室(套房)
  5. 浴廁
  6. 臥室
  7. 陽台
屋頂平面圖
屋頂平面圖

樓梯間:8.14m2(2.46坪)

屋頂平面圖
  1. 屋頂
  2. 樓梯間