:::

營建署專業代辦「建構新農民培育之育成基地-花卉栽培設施育成基地興建工程」

營建署專業代辦遴選優質設計監造廠商

行政院農業委員會農業試驗所古坑花卉研究中心,「建構新農民培育之育成基地-花卉栽培設施育成基地興建工程」計畫,新建精密設施溫室、簡易開頂塑膠布溫室及網室規劃設置,使新農民培育所需場地,可以符合現行法規之要求外,並規劃工作管理儲藏室(含廁所、盥洗室)設置。「行政院農業委員會農業試驗所古坑花卉研究中心執行工程計畫」,於108年1月洽請內政部營建署為專業代辦採購機關,目前已完成規劃設計及監造技術服務廠商的遴選作業,經評選由「鉅凱建築師事務所」承攬本案之規劃設計監造技術服務。

建築物量體規模及重要里程碑

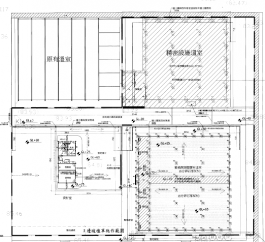
本工程基地位於雲林縣古坑鄉,緊鄰 30 米內山公路,北側有古坑綠色隧道,西側為農場設施田地,其南側農場設施田地,東側為崁頂溪。基地面積4,172 平方公尺,計畫新建地上1層之農業資材室總樓地板面積113.89m2、精密溫室631.32m2、簡易溫室767.2m2及全區相關整地、景觀、鋪面工程。本工程契約金額計新臺幣1,497萬2,288元,營建署於108年9月完成細部設計審定及發包作業,由「利豐營造有限公司」承攬施工,已於109年2月18日開工,預定109年9月竣工後,移交洽辦機關一個優質的花卉育成溫室場所。

具智慧環控系統玻璃溫室及智慧網室之優質花卉育成基地

本工程是以強化國家精緻農業的農業設施工程,朝著「研究中心」、「溫度控制」、「智慧環控」、「精緻農業」、等目標新建之農業育成基地,並以具有智慧型數位光纖網路等智慧建築為興建的基本藍圖。除了使用人員與農民在資材的空間中達到舒適性、便利性、節能、農業試驗學習等目的外,也兼顧使用單位與農民及參訪者之人身安全,並營造農業設施之「智慧農業」、「人與空間」密切關係,達成和諧及友善環境。

↑工程基地位置圖(農試所雲林縣古坑鄉花卉研究中心內)
↑工程基地位置圖(農試所雲林縣古坑鄉花卉研究中心內)
↑全區配置圖
↑全區配置圖
↑剖面圖
↑剖面圖
↑立面圖
↑立面圖
↑透視圖
↑透視圖

單位主管:何志浩 處長
聯絡電話:04-2218-8287
發稿單位:中區工程處